Service Station Concept Design 

Caltex Oxenford

Caltex engaged inTOTUM® to develop a bespoke design solution that satisfied the City of Gold Coast town planning requirements while still respecting the Caltex Convenience Store standard offer and brand identity. The challenge was to balance planning controls with the brand standards without overcomplicating the outcome.

inTOTUM® worked closely with Caltex to resolve the design through clear, practical solutions, including the use of freehand sketches to quickly test ideas and secure design sign-off. inTOTUM® then collaborated with architectural visualisation consultant Creative Threshold to produce realistic imagery for the Developer’s Development Application submission.

Client: Caltex Australia Petroleum
Project Type: Retail Service Station
Provided Services: Concept Design
3D Rendering and Architectural Visualisation: Creative Threshold
Year Completed: 2015

Hand sketch concept design
Concept site layout
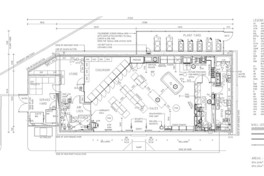
Concept floor plan
3D rendering of concept design
Hand sketch concept design

Let’s help bring your bespoke design project to life.

  • ●  Building Design
  • ●  Interior Design
  • ●  Fuel System Design

inTOTUM® acknowledges the Traditional Custodians of Country throughout Australia and their connections to land, sea and community. We pay our respects to their elders past and present and extend our respect to all Aboriginal and Torres Strait Islander peoples.